Проектирование систем отопления
- Выезд инженера на объект - бесплатно
- Подбор оборудования и материалов
- Наличие всех лицензий и сертификатов
Наша команда занимается проектирование систем ОВК для зданий жилого и производственного назначения. Плотное взаимодействие с заказчиком позволяет нам избежать ошибок при проектировании и разработать наиболее выгодное и энергоэффективное решение.
Стадии выполнения проекта:
- Выезд инженера на объект, консультация;
- Формирование технического задания;
- Разработка проектно-технической документации;
- Разработка поэтажных планов;
- Подбор оборудования и материалов;
- Согласование проекта.
Здесь мы представляем основной пакет документов и расчетов входящих в раздел проектирования систем ОВК. Наши специалисты помогут Вам разработать систему согласно техническому заданию и нормативной документации в зависимости от Вашей потребности.
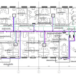
Проект отопительной системы включает в себя:
- Пояснительную записку;
- Теплотехнический и гидравлический расчет;
- Схему подключения используемых приборов отопления;
- Аксонометрическую схему реализуемой системы отопления;
- Трассировку трубопроводов от стояков отопления;
- План подключения коллекторных узлов;
- Поэтажные планы с указанием порядка установки приборов отопления, подбора и расстановки; радиаторов и разводки трубопроводов.
Наша компания вот уже на протяжении многих лет производит монтаж вытяжной вентиляции в жилых и производственных помещений. За это время был накоплен богатый опыт по построению систем различного исполнения. Большой выбор оборудования представлен на нашем сайте. Если Вы хотите подобрать необходимое оборудование и просчитать стоимость монтажа, обращайтесь к менеджерам компании. Они помогут вам собрать систему в зависимости от ваших потребностей и предложат наиболее выгодный и энергоэффективный вариант.
| Работаем по договору | Комплексный охват | |||||
| Оформляем договор оказания услуг на весть комплекс проектных работ. Расчет срока выполнения работ. Отправьте нам запрос и рассчитаем стоимость под ключ. | Проектируем комплексное решение, в которое входят все разделы инженерных систем. Так же производим подбор оборудования, монтаж и дальнейшее обслуживание. | |||||
| Широкий ассортимент | Постоянная поддержка | |||||
| На нашем сайте представлено более 10 000 позиций оборудования и материалов для организации систем вентиляции, кондиционирования и отопления. | Специалисты нашей компании всегда остаются на связи. По всем вопросам Вы можете обратиться по телефону 8 (800) 707-16-67. Звонок по России - бесплатно. | |||||
| Оптимизация расходов | Энергоэффективные решения | |||||
| Вносим в проект оборудование различной ценовой категории в соотношении цена - качество. Это позволяет значительно уменьшают стоимость оборудования и не влияют на необходимые параметры. | Поможем существенно уменьшить эксплуатационные расходы электричества и горячей воды, учитывая это в проектировании систем вентиляции и кондиционирования. | |||||
Стоимость проектирования систем отопления
| Проектирование систем отопления | Цены | ||||
| Проектирование системы отопления для жилых помещений площадью до 100 м2 | 45 000 руб. | ||||
| Проектирование системы отопления для жилых помещений площадью от 100 м2 | 190 руб./м2 | ||||
| Проектирование системы отопления для складских помещений площадью от 100 м2 | 90 руб./м2 | ||||
| Проектирование системы отопления для административных помещений площадью от 100 м2 | 80 руб./м2 | ||||
| Проектирование системы отопления для производственных помещений площадью от 100 м2 | 60 руб./м2 | ||||
Проектирование систем отопления, также ищут
